Skip to main content

Search

ProChannel CI

Continuous insulation Rainscreen Framing system

ProChannel Ci Cladding Support System is a thermally and structurally efficient exterior wall cladding support system utilizing the self-sealing Grip-Deck TubeSeal® fastening system from TruFast Walls.

ProChannel Ci Rail

ProChannel Ci Cladding Support with Grip-Deck TubeSeal® technology is a thermally and structurally efficient exterior rainscreen wall cladding system that is intended to minimize penetrations through the insulation layer to hold an exterior rainscreen cladding in place. This system can be installed with the hat channel running horizontally. 

  • Creates a 7/8" vented rainscreen air cavity
  • Standard 12'-0" length
  • Thermal performance and load capacity tables available
  • Stocked in 54 mils (16ga) galvanized CP60 steel.
  • 1-1/2” wide flanges for easy screw attachment.
  • Prepunched holes in flange at 1" o.c. for a wide variety of screw spacings.
  • Slotted holes moisture weeping and air movement

Contact ClarkDietrich Technical Services at 888-437-3244 for thermal values.

Grip-Deck TubeSeal™ fasteners

The Grip-Deck TubeSeal® fastening system from TruFast Walls seals the fastener penetrations against air and water leakage, and it does not use any clips, girts, or other large penetrations through the insulation to affix the rainscreen to the structure.

Insulation DepthSDS #10 LengthPCS Per BoxPCS Per Bucket
1" *3"250500
1-1/2"3-1/2"250500
2"4"250500
2-1/2" *4-1/2"250500
3"5-1/2"250500
3-1/2" *6"250500
4"6"250500

* Screw lengths not stocked at ClipExpress. please contact ClarkDietrich Sales for lead-time information.
** HiLo (wood) screws available upon request. 

Code Approvals & Performance Standards

  • AISI S100-16 (2020) w/S2-20 North American Specification for the Design of Cold-Formed Steel Structural Members
  • AISI S240-20 North American Standard for Cold-Formed Steel Structural Framing
    • Section A3 Material - Chemical & mechanical requirements (Referencing ASTM A1003/A1003M)
    • Section A4 Corrosion Protection (Referencing ASTM A653/A653M)
  • ASTM C1513 Standard Specification for Steel Tapping Screws for Cold-Formed Steel Framing Connections
  • ASTM E331 Standard Test Method for Water Penetration of Exterior Windows, Skylights, Doors, and Curtain Walls by Uniform Static Air Pressure Difference
  • ASTM E2357 Standard Test Method for Determining Air Leakage Rate of Air Barrier Assemblies
  • SDS For ASTM A1003 Steel Framing Products For Interior Framing, Exterior Framing and Clips/Accessories
 

CAD Details

Note: to view all of ClarkDietrich's CAD details, visit the CAD Details Library.

ProChannel Ci Base of Wall Detail
ProChannel Ci Base of Wall Detail
ProChannel Ci Base of Wall Detail
ProChannel Ci Butt Joint Detail
ProChannel Ci Butt Joint Detail
ProChannel Ci Butt Joint Detail
ProChannel Ci Deflection Joint Detail
ProChannel Ci Deflection Joint Detail
ProChannel Ci Deflection Joint Detail
ProChannel Ci Head Detail
ProChannel Ci Head Detail
ProChannel Ci Head Detail
ProChannel Ci Inside Corner Detail
ProChannel Ci Inside Corner Detail
ProChannel Ci Inside Corner Detail
ProChannel Ci Jamb Detail
ProChannel Ci Jamb Detail
ProChannel Ci Jamb Detail
ProChannel Ci Outside Corner Detail
ProChannel Ci Outside Corner Detail
ProChannel Ci Outside Corner Detail
ProChannel Ci Parapet Detail
ProChannel Ci Parapet Detail
ProChannel Ci Parapet Detail
ProChannel Ci Plan Detail
ProChannel Ci Plan Detail
ProChannel Ci Plan Detail
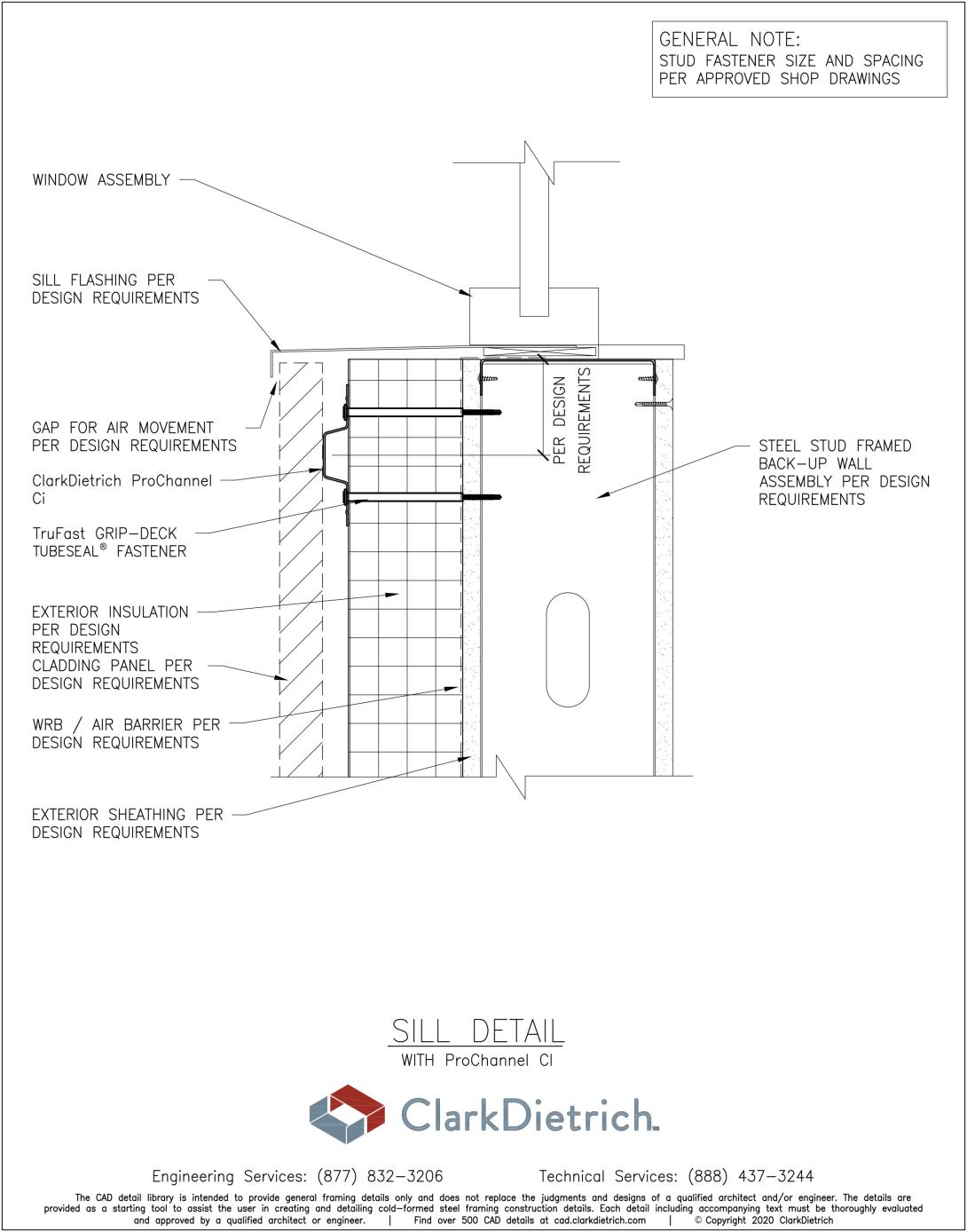
ProChannel Ci Sill Detail
ProChannel Ci Sill Detail
ProChannel Ci Sill Detail
ProChannel Ci Typ Section Detail
ProChannel Ci Typ Section Detail
ProChannel Ci Typ Section Detail

Product submittal SHeets

Click the below Product Code to view Submittal/Tech Datasheet.

Product CodeDescription
ProChannel Ci7/8" Cladding Support with Grip-Deck TubeSeal® Technology

ClarkDietrich SubmittalPro®

Submittal sheets for the exact product you're looking for can be created by using ClarkDietrich's SubmittalPro® Product Submittal System.