Vertical building movement up to 3"
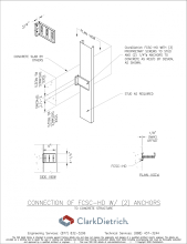
ClarkDietrich FCSC-HD 68mils (14ga) is used to attach exterior curtain-wall studs to the building concrete structure and provide for vertical building movement independent of the cold-formed steel framing.
Proprietary Deflection Screws are provided with each clip for attachment to the wall studs and allow for 3" vertical deflection (1-1/2" up and down) to ensure friction-free sliding. A 5/8" hole in the short leg of the clip allows for a 1/2" concrete anchor to be attached to the slab. (2) 3/8" holes allow for 1/4" anchors.
- Clip Express Sales at 866-638-1908 or clipexpress@clarkdietrich.com
- Technical Support at 888-437-3244 or support@clarkdietrich.com
Product Data & Ordering Information:
| Product code | Gauge | Mils | Design thickness (in) | Size (in) | Pcs./Bucket |
|---|---|---|---|---|---|
| FCSC-HD | 14 | 68 | 0.0713" | 1-1/2" x 4-1/4" x 6" long | 25 |
Includes 80 Proprietary Deflection Screws per bucket
Material Structural Grade 50 Type H (ST50H), 50ksi
Coating G90 (Z275) hot-dipped galvanized coating
See submittals for product weights
Installation:
To attach the clip to the cold-formed steel framing stud, three Proprietary Deflection Screws, shall be driven through the slotted holes and positioned to allow for the appropriate building deflection. Attachment to the structure concrete slab can be made with 1/2" bolt anchors. Anchor connection design and edge distance requirements must be approved by a design professional before installation.
Code Approvals & Performance Standards
- ASTM A653 Standard Specification for Steel Sheet, Zinc-Coated (Galvanized) or Zinc-Iron Alloy-Coated (Galvannealed) by the Hot-Dip Process
- ASTM A1003 Standard Specification for Steel Sheet, Carbon, Metallic- and Nonmetallic-Coated for Cold-Formed Framing Members
- SDS For ASTM A1003 Steel Framing Products For Interior Framing, Exterior Framing and Clips/Accessories
CAD Details
Note: to view all of ClarkDietrich's CAD details, visit the CAD Details Library.
PRoduct submittal SHeets
Click the below Product Code to view Submittal/Tech Datasheet.
| Product Code | Description |
|---|---|
| FCSC-HD | FastClip™ Slide Clip w/Anchor Holes |
ClarkDietrich SubmittalPro®
Submittal sheets for the exact product you're looking for can be created by using ClarkDietrich's SubmittalPro® Product Submittal System.
- Clip Express Sales at 866-638-1908 or clipexpress@clarkdietrich.com
- Technical Support at 888-437-3244 or support@clarkdietrich.com